Accueil › Forums › Jeep en Vrac › Groupe 17-18-21 : Carrosserie – Sellerie et Peinture. › Caisse MD juan
Étiqueté : Perçage de la caisse
- Ce sujet contient 15 réponses, 8 participants et a été mis à jour pour la dernière fois par
YLG80, le il y a 1 mois et 4 semaines.
-
AuteurMessages
-
19 décembre 2025 à 18h30 #175945
Bonjour à tous,des avis sur une caisse MD juan (fabriquée il y a environ 10ans) ?. Pour ma part, rien de bon, même la hache ne se positionne pas correctement (rentre pas dans le fourreau et ne tombe pas sur le marché pied.Suis je le seul à galérer avec cette caisse ?.
21 décembre 2025 à 19h04 #175984Bonsoir MB4736 …c est effectivement la petite musique que l’on entend sur certains caisses de reproduction…perso je suis resté sur de l’original donc je peux pas apporter d’elements d experience sur le sujet.
Y a ceux qui causent, y a ceux qui font.....
21 décembre 2025 à 20h24 #175986Bonjour,
Trop novice dans ce domaine pour vous aidez
Raphael
21 décembre 2025 à 21h29 #175987Même chôse pour restauration complète de ma caisse.
Bruno
https://passion-jeep-b.blogspot.com/2017/11/resto-ford-gpw.html
21 décembre 2025 à 23h22 #175988Bonsoir,
De mémoire, j’ai lu un jour que les haches lot de bord pour Jeep ne sont pas les mêmes que celles que l’on peut trouver sur les autres véhicules qui étaient équipés de support pour outils pionniers (dodge, gmc,…). Peut-être une piste à creuser ?
Concernant les caisses repro MD JUAN, il semble que les imperfections ont été corrigées au fur et à mesure des années de production. J’ai des copains qui en ont sur leur Jeep et qui en sont satisfaits.Eric
21 décembre 2025 à 23h42 #17598922 décembre 2025 à 4h07 #175991Bonjour
Je ne sais pas si la caisse de ma M201 est une MD Juan (elle n’a pas de numéro) mais la hache que j’ai achetée chez Jeep Est ne rentrait pas dans le fourreau au dessus du marchepied : J’ai donc allongé les tiges filetées du fourreau pour que ça passe.

Stan
en direct de sa Hotchkiss M201 de 196022 décembre 2025 à 12h01 #176006Je confirme concernant les lot de bord, moi c’etait la pelle qui n’allait pas j’en ai trouvé une autre qui va parfaitement.
Bruno
https://passion-jeep-b.blogspot.com/2017/11/resto-ford-gpw.html
22 décembre 2025 à 14h29 #176011Bonjour,
En photo : hache origine US sur caisse repro MD JUAN, tout est à sa place sans modification.

Eric
24 décembre 2025 à 16h58 #176057Bonjour, Voici le numéro de ma caisse :J13011520E, est ce vraiment une MD juan ?, année ?
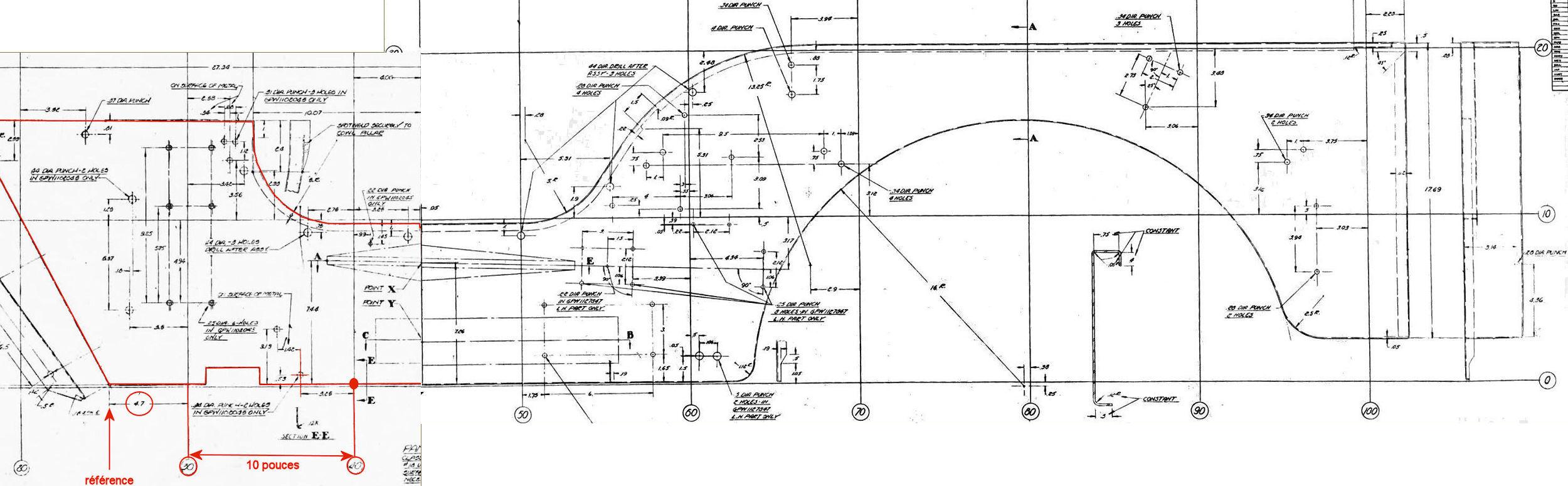
27 décembre 2025 à 11h39 #176060Bonjour,
Les premières caisse MD JUAN étaient en effet réputées pour leur problèmes de précision des perçages.
Mais rien qui aurait pu les rendre inutilisables.
A toutes fins utiles voici un plan reconstitué à partir de deux plans distincts du côté de la caisse avec des cotes qui devraient vous permettre de vous en sortir.

Pour infos je me souviens avoir aussi eu des difficultés avec la fixation de la hache sur ma caisse originale GPW.
Quant à la pelle il en faut une avec la courbure correcte pour le galbe de carrosserie de la jeep.
Toutes les pelles US WWII ne sont pas égales devant la jeep :)!
27 décembre 2025 à 11h44 #176061Pour la pelle, voici des infos utiles concernant son profil adapté au galbe de la carrosserie de la jeep

Yves
27 décembre 2025 à 17h06 #176063Bonjour,
Je ne pense pas que les caisses MD JUAN soient numérotées, à faire confirmer.
Eric
28 décembre 2025 à 16h30 #176074Bonjour
J’ai eu un problème similaire avec un bas de caisse, l’empreinte ou emboutis pour la hache, n’était pas assez prononcé.
Je m’en suis rendu compte avant pose et j’ai réussi à rectifier la profondeur de 7 ou 8 mm.
Amicalement
28 décembre 2025 à 19h21 #176075<p style=”text-align: center;”>Hélas,ce n’est pas mon seule problème, la hache dans son fourreau tombe à côté du Marche pied, rien ne va avec cette caisse,je pense devoir en racheter une autre.J’aimerais trouver une originale même en très mauvais état, plus aucune confiance dans ces reproductions.Si quelqu’un en connaît une à vendre,si possible en Belgique, merci.</p>
-
AuteurMessages
- Vous devez être connecté pour répondre à ce sujet.
